AESSE - Abitare la scuola - Agenzia Nazionale per lo Sviluppo dell'Autonomia Scolastica ex Indire logo Agenzia Nazionale per lo Sviluppo dell'Autonomia Scolastica ex Indire
 

aule flessibili

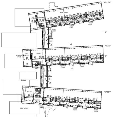
Nei blocchi delle aule la distribuzione interna è caratterizzata dalla flessibilità degli spazi, ottenibile grazie ad una serie di pareti mobili.

interni

Homebase nel blocco giallo.

La presenza delle pareti mobili consente di variare l’ampiezza dei vani e quindi ospitare grandi o piccoli gruppi, a seconda delle esigenze dettate dalle modalità di apprendimento.

pianta

I blocchi delle aule.